吉隆坡满家乐社区(Mont Kiara)是吉隆坡的繁华多元文化社区,以高端住宅、商业区和国际学校而著称。这里拥有现代化设施、丰富的生活选择和便捷的交通,吸引了来自世界各地的居民和外籍人士。
今天,小编为大家推荐的住宅位于马来西亚首都满家乐地区的项目,BonKiara和ALIX Residences融合现代设计与尊贵生活,单价仅1-1.2万!无论您是自住或是投资,都不容出错。
1.BonKiara
项目名称:Bon Kiara
开发商:Land Marker Sdn Bhd
土地产权:永久产权
装修状况:精装半配
单价:1.05万RMB/平方米
楼数:两栋,各45层
楼层分布:1-7停车楼层,24层娱乐设施,8-43住宅层
主力户型:A1户型(套内面积193平方米),B1户型(套内面积237平方米)
总单位数:410户
竣工时期:预计2027年
BonKiara 公寓位于吉隆坡市中心的Mont Kiara地区,这个地区是马来西亚首都的一个繁华区域,以其豪华住宅和国际学校而闻名。这个地理位置使居民轻松前往吉隆坡市区以及附近的商业区和娱乐场所。
设施和便利
BonKiara 公寓内设施丰富,包括大堂、健身房、花园、会议室和24小时保安服务。居民可以尽情享受社区内的各种便利设施,使他们的生活更加愉悦和便捷。
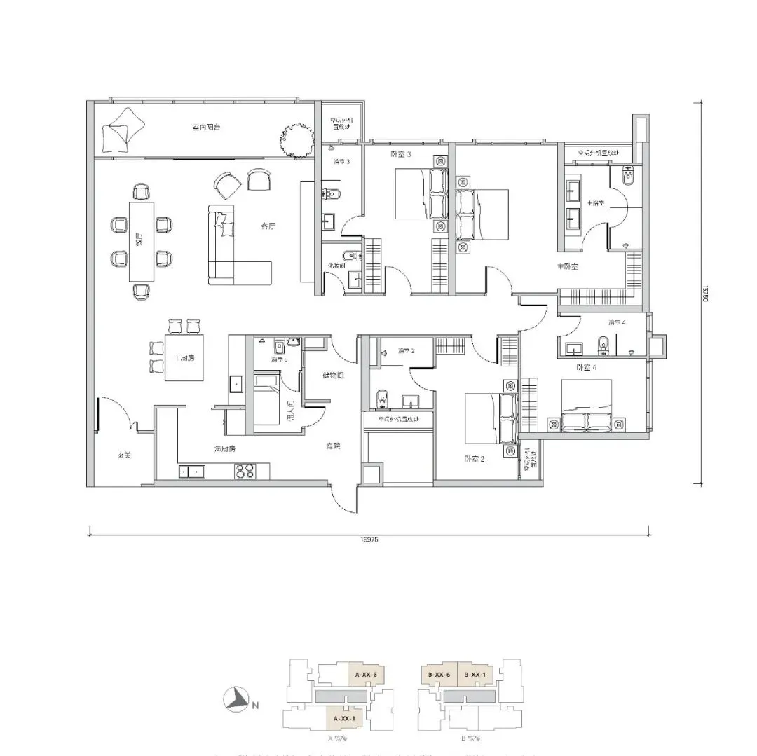
主要户型
样板间展示
精致而迷人的生活空间,Bon Kiara住宅采用宽敞的开放式布局,面积从2,081平方英尺起。每间卧室都经过精心规划,以最大限度地利用自然光线和通风。
2.ALIX RESIDENCES
项目名字:ALIX RESIDENCES
单价:12000人民币/㎡ 起
开发商:ORCHARD PARK SDN BHD
类型:豪华公寓
地理位置:Kiara North
土地产权:永久地契
土地类型:住宅土地
土地面积:4.55 英亩
装修状况:精装修
竣工日期:2023 第三季度竣工
物业管理:物业管理未确定(第一年由开发商管理)
物业管理 [含保修费]:马币 0.38 每平方尺
ALIX Residences 的住宅单位采用现代、精致的设计,融合了高端材料和内部装修,以创造尊贵的生活环境。每个单位都配备了现代化的家电和设施,确保居民的舒适和便利。
ALIX Residences 拥有丰富的社区设施,包括游泳池、健身房、休闲区域、绿化花园和24小时保安服务。这些设施为居民提供了高品质的生活方式和社交机会。
多用途礼堂/羽毛球场 、迎宾台 、 网球场 、更衣室、桑拿、健身房、 瑜伽工作室 、泳池甲板、 池畔凉亭 、大泳池、 按摩浴缸、儿童泳池 、大草坪台阶 、慢跑道、儿童游乐场 - 室内和室外
END
|联|系|我|们|
400 1811 380
官网
专注于马来西亚|分享优质好房源
置业马来西亚
拥有大量马来西亚楼盘的交易平台
行业资深顾问快速咨询
咨询|筛选匹配|成交签约|移居安家|售后物业管理|等服务
房天下海外房产房源已覆盖全球近30个热门国家,涵盖美国、澳大利亚、日本、加拿大、英国、阿联酋、马来西亚等热门国家及区域,并与近千个海外房产企业建立合作关系。联合全球各地知名海外置业经纪人,推出包含住宅、商业地产、土地等多种类型地产项目。房天下海外房产专家团队,会从选择房产、银行贷款到具体交易流程,为您提供实时的海外置业咨询服务。投身海外置业,房天下海外房产永远在您身边。
房天下海外房产为您提供实时的海外置业信息,掌握海外房产信息,就选房天下海外房产网。
haiwai@fang.com
吉隆坡满家乐社区(Mont Kiara)是吉隆坡的繁华多元文化社区,以高端住宅、商业区和国际学校而著称。这里拥有现代化设施、丰富的生活选择和便捷的交通,吸引了来自世界各地的居民和外籍人士。
今天,小编为大家推荐的住宅位于马来西亚首都满家乐地区的项目,BonKiara和ALIX Residences融合现代设计与尊贵生活,单价仅1-1.2万!无论您是自住或是投资,都不容出错。
1.BonKiara
项目名称:Bon Kiara
开发商:Land Marker Sdn Bhd
土地产权:永久产权
装修状况:精装半配
单价:1.05万RMB/平方米
楼数:两栋,各45层
楼层分布:1-7停车楼层,24层娱乐设施,8-43住宅层
主力户型:A1户型(套内面积193平方米),B1户型(套内面积237平方米)
总单位数:410户
竣工时期:预计2027年
BonKiara 公寓位于吉隆坡市中心的Mont Kiara地区,这个地区是马来西亚首都的一个繁华区域,以其豪华住宅和国际学校而闻名。这个地理位置使居民轻松前往吉隆坡市区以及附近的商业区和娱乐场所。
设施和便利
BonKiara 公寓内设施丰富,包括大堂、健身房、花园、会议室和24小时保安服务。居民可以尽情享受社区内的各种便利设施,使他们的生活更加愉悦和便捷。
主要户型
样板间展示
精致而迷人的生活空间,Bon Kiara住宅采用宽敞的开放式布局,面积从2,081平方英尺起。每间卧室都经过精心规划,以最大限度地利用自然光线和通风。
2.ALIX RESIDENCES
项目名字:ALIX RESIDENCES
单价:12000人民币/㎡ 起
开发商:ORCHARD PARK SDN BHD
类型:豪华公寓
地理位置:Kiara North
土地产权:永久地契
土地类型:住宅土地
土地面积:4.55 英亩
装修状况:精装修
竣工日期:2023 第三季度竣工
物业管理:物业管理未确定(第一年由开发商管理)
物业管理 [含保修费]:马币 0.38 每平方尺
ALIX Residences 的住宅单位采用现代、精致的设计,融合了高端材料和内部装修,以创造尊贵的生活环境。每个单位都配备了现代化的家电和设施,确保居民的舒适和便利。
设施和便利
ALIX Residences 拥有丰富的社区设施,包括游泳池、健身房、休闲区域、绿化花园和24小时保安服务。这些设施为居民提供了高品质的生活方式和社交机会。
多用途礼堂/羽毛球场 、迎宾台 、 网球场 、更衣室、桑拿、健身房、 瑜伽工作室 、泳池甲板、 池畔凉亭 、大泳池、 按摩浴缸、儿童泳池 、大草坪台阶 、慢跑道、儿童游乐场 - 室内和室外
主要户型
样板间展示
END
|联|系|我|们|
400 1811 380
官网
专注于马来西亚|分享优质好房源
置业马来西亚
拥有大量马来西亚楼盘的交易平台
行业资深顾问快速咨询
咨询|筛选匹配|成交签约|移居安家|售后物业管理|等服务